Yılmazoğulları Değirmen

İletişim

TOZ SİKLONU

Toz Siklonu, tahıl temizleme sisteminde aspiratör çıkışına monte edilmektedir. Temizleme makinelerden gelen hava içindeki toz ve diğer hafif maddelerin tutulmasını sağlar. Toz aspiratörlerinden gelen ve toz ihtiva eden hava, teğetsel olarak siklona verildiği zaman kesit genişlemesi sonucu hızını kaybeder, hava içinde bulunan partiküller yerçekimi ile aşağı inerken temiz hava tahliye olur.
TOZ SİKLONU

YILMAZ OĞULLARI

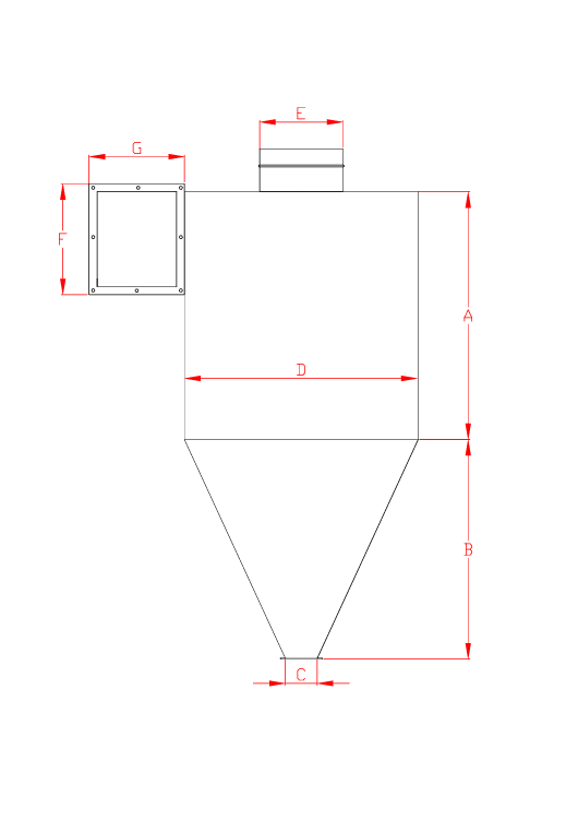
Teknik Tablo

Teknik Tablo

MODEL
TİPİ
Ölçüler (mm)
A B C D E F×G
YMS TS 80 1000 1000 140 800 400 400×350
YMS TS 100 1000 1200 140 1000 400 400×400
YMS TS 120 1200 1200 150 1200 500 500×400
YMS TS 150 1500 1500 150 1500 500 500×450

TOZ SİKLONU

YÜKSEK KALİTE

TOZ SİKLONU

Toz Siklonu, tahıl temizleme ve un üretim tesislerinde aspiratör çıkışına monte edilerek, hava içerisinde taşınan toz ve hafif partiküllerin etkili biçimde tutulmasını sağlayan yüksek verimli bir filtreleme ekipmanıdır. Temizleme makinelerinden gelen ve yoğun miktarda toz ihtiva eden hava, siklona teğetsel olarak girer. Bu giriş şekli sayesinde siklon gövdesi içinde güçlü bir dönel akım oluşur ve kesit genişlemesi ile birlikte hava hızı kontrollü olarak düşürülür. Merkezkaç kuvvetinin ve yerçekiminin etkisiyle hava içerisindeki un tozu, kabuk parçacıkları ve diğer hafif maddeler siklon cidarına savrularak alt koni kısmında toplanır. Ayrıştırılmış olan temiz hava ise üst tahliye ağzından atmosfere yönlendirilir. Dayanıklı çelik konstrüksiyon gövdesi sayesinde uzun ömürlü kullanım sunan Toz Siklonu, tesis içinde toz birikimini önleyerek hem makine sağlığını korur hem de çalışma ortamının hijyenini artırır. Enerji verimli tasarımı sayesinde aspiratör sistemleri ile tam uyumlu çalışır ve bakım ihtiyacını minimum seviyede tutar. Un ve irmik fabrikaları başta olmak üzere tüm tahıl işleme tesislerinde çevre kirliliğini azaltan, üretim hattını koruyan ve işletme güvenliğini yükselten vazgeçilmez bir ekipmandır.

Sıkça Sorulan Sorular

Yılmazoğulları değirmen makineleri hangi hammaddelerin işlenmesinde kullanılabilir?

Yılmazoğulları olarak, un üretiminden yem fabrikalarına, baharat öğütmeden mineral bazlı ürünlerin parçalanmasına kadar geniş bir yelpazede kullanılabilen değirmen makineleri üretmekteyiz. Sistemlerimiz; buğday, arpa, mısır gibi tahılların yanı sıra mercimek, nohut, karabiber, kaya tuzu ve kalsit gibi farklı granül ve mikronize ürünlerin verimli şekilde işlenmesini sağlar.

Enerji tasarrufu, Yılmazoğulları ’nın tasarım ve mühendislik sürecinde öncelik verdiği temel kriterlerden biridir. Kullandığımız özel motor teknolojileri, akıllı frekans kontrol sistemleri ve optimize edilmiş rotor-geçiş tasarımları sayesinde, üretim kapasitesinden ödün vermeden düşük enerji tüketimi elde edilmektedir. Bu sayede, işletme maliyetlerinizi minimize ederken çevresel sürdürülebilirliği de desteklemiş olursunuz.

Yılmazoğulları , satış sonrası teknik destek süreçlerinde müşterilerini yalnız bırakmaz. Tüm makinelerimiz, uzman mühendislerimiz eşliğinde yerinde kurulmakta ve operatör eğitimiyle birlikte devreye alınmaktadır. Ayrıca, yedek parça temini, bakım protokolleri ve uzaktan destek hizmetleriyle operasyonel sürekliliğiniz güvence altına alınır.

İLETİŞİM

KATALOG

Dayanıklı Yapı

High-strength steel for heavy-duty load capacity.

Güçlü Performans

Compatible with mechanical and air suspension systems.

Kolay Bakım

Long-lasting with minimal upkeep.

Uluslararası Standartlar

Meets global quality and safety certifications.

The Steering Axle Group is a crucial component in vehicles, responsible for enabling smooth and controlled steering.
© 2026 Yılmazoğulları Değirmen. Telif hakkı ve hakları saklıdır.

FİYAT TEKLİFİ AL